| 価格 | 3,790万円 ![]() |
||||
|---|---|---|---|---|---|
| 所在地 | 東京都八王子市散田町2
この地域周辺の物件を見る |
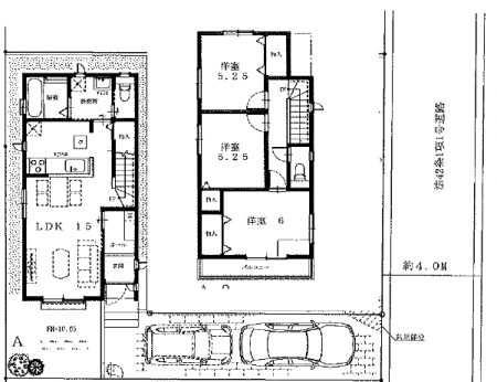
土地面積 | 101.56m² (30.72坪) | 建物面積 | 79.9u |
| 築年月 | 2025年12月築 | 間取り | 3LDK (LDK15.25/洋室5.25/洋室6/洋室6) | ||
| 交通 |
JR中央線 西八王子 徒歩15分
|
||||
電話をかける(携帯・PHS可)
042-665-5151
「ホームページを見た」とお伝え下さい。
お問い合わせ番号をお伝えください
RHS-d-574
| 特徴 |
|
|---|---|
| セールスコメント | 【設備仕様(一例)】 ◇システムキッチン(人造大理石) ◇1F・2Fウォシュレットトイレ ◇シャンプードレッサー付洗面化粧台 ◇浴室暖房乾燥機 ◇TVモニター付インターホン 【Life information】 □市立山田小学校 約550m(徒歩9分) □市立第七中学校 約300m(徒歩4分) □山田保育園 約250m(徒歩4分) □なかよし幼稚園 約1.2km(徒歩18分) □朝日ヶ丘中公園 約75m(徒歩1分) □業務スーパー 約500m(徒歩8分) □スーパーアルプス 約850m(徒歩13分) □南多摩病院 約950m(徒歩14分) |
| 採光面 | - | 構造/階数 | 木造/地上2階建 |
|---|---|---|---|
| 建ぺい率 | 40(%) | 容積率 | 80(%) |
| 駐車場 | 有 | 現況/引渡し | 建築中/相談 |
| 土地権利 | 所有権 | 私道負担面積 | なし |
| 接道状況 | 接道: 東 公道 道路幅: 4m | 用途地域 | 第一種低層住居専用地域
|
| セットバック | なし | 法令上の制限 | |
| 地目 | 宅地 | 地勢 | |
| 建築確認番号 | HPA-25-09817-1 | 都市計画 | 市街化区域 |
| 取引態様 | 仲介 | ||
| 情報更新日 | 2025年11月16日 | 次回更新日 | 2025年11月30日 |
| 小学校区 | 八王子市立山田小学校 (東京都八王子市) この学区の他の物件を見る |
中学校区 | 第七中学校 (東京都八王子市) この学区の他の物件を見る |
|---|
電話をかける(携帯・PHS可)
042-665-5151
「ホームページを見た」とお伝え下さい。
お問い合わせ番号をお伝えください
RHS-d-574
| 年利率 | % |
||
|---|---|---|---|
| ボーナス払い | 返済年数 | ||
| 頭金 | 直接入力する | 万円 | |

毎月のご返済額 |
ボーナス(×年2回) |
物件価格3,790万円 |
![]() |
![]() |
八王子市散田町2
3490万円〜3790万円 |
電話でお問い合わせ
高尾ホーム有限会社
|
電話をかける 042-665-5151 ※「ホームページを見た」とお伝えください。 |
お問い合わせ番号をお伝えください RHS-d-574 |
|---|
Copyright(C) Takao home All Rights reserved.
○のどかな住環境
○カ-スペース2台付