| 価格 | 2,850万円値下がり ![]() |
||||
|---|---|---|---|---|---|
| 所在地 | 東京都八王子市諏訪町
この地域周辺の物件を見る |
土地面積 | 125.01m² (37.82坪) | 建物面積 | 97.2u |
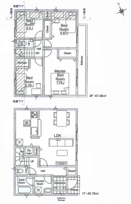
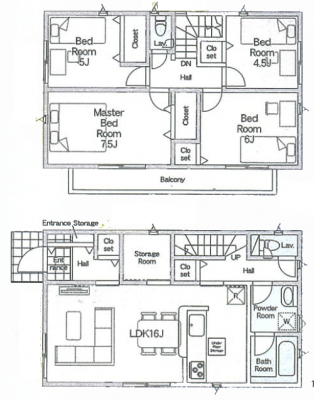
| 築年月 | 2025年10月築 | 間取り | 4LDK (LDK16/洋室5/洋室7.5/洋室4.5/洋室6) | ||
| 交通 |
JR中央線 西八王子 諏訪神社 バス18分 停歩4分
JR中央線 八王子 諏訪神社 バス30分 停歩4分 |
||||
電話をかける(携帯・PHS可)
042-665-5151
「ホームページを見た」とお伝え下さい。
お問い合わせ番号をお伝えください
RHS-d-568
| 特徴 |
|
|---|---|
| セールスコメント | 【設備仕様(一部)】 □システムキッチン(浄水器一体型水栓・3口ガスコンロ) □換気暖房乾燥機 □シャワードレッサー □1F・2Fシャワートイレ □TVモニター付インターホン □人感センサー付玄関証明
【Life information】
◇市立上壱分方小学校 約950m(徒歩13分)
◇市立四谷中学校 約800m(徒歩11分)
◇諏訪保育園 約130m(徒歩2分)
◇八王子桑の実幼稚園 約400m(徒歩5分)
◇セブンイレブン 約550m(徒歩8分)
◇オザム 約550m(徒歩7分)
◇諏訪町公園 約130m(徒歩2分)
|
| 採光面 | - | 構造/階数 | 木造/地上2階建 |
|---|---|---|---|
| 建ぺい率 | 40(%) | 容積率 | 80(%) |
| 駐車場 | 有 | 現況/引渡し | 建築済/即時 |
| 土地権利 | 所有権 | 私道負担面積 | なし |
| 接道状況 | 接道: 北西 公道 道路幅: 5m 接道: 北東 公道 道路幅: 5.5m |
用途地域 | 第一種低層住居専用地域
|
| セットバック | なし | 法令上の制限 | |
| 地目 | 宅地 | 地勢 | |
| 建築確認番号 | 第R07SHC113185号 | 都市計画 | 市街化区域 |
| 取引態様 | 仲介 | ||
| 情報更新日 | 2025年12月13日 | 次回更新日 | 2025年12月27日 |
| 小学校区 | 八王子市立上壱分方小学校 (東京都八王子市) この学区の他の物件を見る |
中学校区 | 四谷中学校 (東京都八王子市) この学区の他の物件を見る |
|---|
電話をかける(携帯・PHS可)
042-665-5151
「ホームページを見た」とお伝え下さい。
お問い合わせ番号をお伝えください
RHS-d-568
| 年利率 | % |
||
|---|---|---|---|
| ボーナス払い | 返済年数 | ||
| 頭金 | 直接入力する | 万円 | |

毎月のご返済額 |
ボーナス(×年2回) |
物件価格2,850万円 |
![]() |
![]() |
八王子市諏訪町
2780万円〜2850万円 |
電話でお問い合わせ
高尾ホーム有限会社
|
電話をかける 042-665-5151 ※「ホームページを見た」とお伝えください。 |
お問い合わせ番号をお伝えください RHS-d-568 |
|---|
Copyright(C) Takao home All Rights reserved.
○全居室2面採光・収納付
○2部屋から出入りできるワイドバルコニー
○フラット35SAタイプ利用可能